UCHWAŁA NR XXXIV/453/2010
RADY MIEJSKIEJ WE WRZEŚNI
z dnia 8 listopada 2010 r.
w sprawie: miejscowego planu zagospodarowania przestrzennego terenów pod budownictwo mieszkaniowe, obejmującego obszar ograniczony ulicami Ks. Jakubowskiego i Chabrową w Kaczanowie.
Na podstawie art. 20 ust. 1 ustawy z dnia 27 marca 2003 r. o planowaniu i zagospodarowaniu przestrzennym (Dz. U. Nr 80, poz. 717 z późn. zm.) oraz art. 4 ust. 2 ustawy z dnia 25 czerwca 2010 r. o zmianie ustawy o planowaniu i zagospodarowaniu przestrzennym, ustawy o Państwowej Inspekcji Sanitarnej oraz ustawy o ochronie zabytków i opiece nad zabytkami (Dz. U. Nr 130, poz. 871) Rada Miejska we Wrześni uchwala, co następuje:
§ 1.
1.Uchwala się miejscowy plan zagospodarowania przestrzennego terenów pod budownictwo mieszkaniowe, obejmujący obszar ograniczony ulicami Ks. Jakubowskiego i Chabrową w Kaczanowie, zwany dalej „planem", po stwierdzeniu jego zgodności ze studium uwarunkowań i kierunków zagospodarowania przestrzennego gminy Września, zatwierdzonym uchwałą Rady Miejskiej we Wrześni nr IX/108/99 z dnia 27.07.1999 r., ze zmianami: uchwała Nr XI/99/03 z dnia 09.07.2003 r., oraz uchwała nr XIV/190/2008 z dnia 15.05.2008 r.
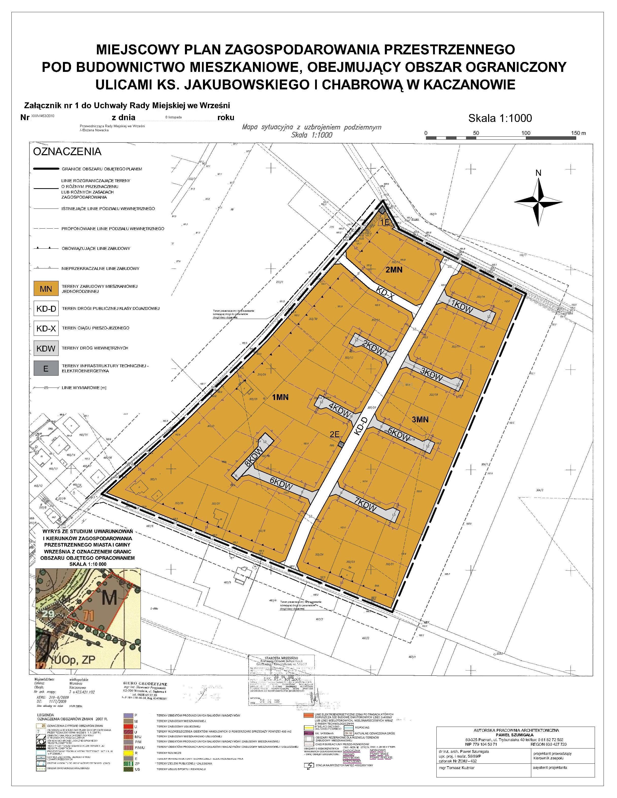
2. Granice obszaru objętego planem określone są na rysunku planu.
3. Integralnymi częściami uchwały są:
1) załącznik Nr 1 - rysunek planu, opracowany w skali 1:1000 i zatytułowany „Miejscowy plan zagospodarowania przestrzennego terenów pod budownictwo mieszkaniowe, obejmujący obszar ograniczony ulicami Ks. Jakubowskiego i Chabrową w Kaczanowie”, stanowiący część graficzną planu, zwany dalej „rysunkiem planu";
2) załącznik Nr 2 - stanowiący rozstrzygnięcie Rady Miejskiej we Wrześni o sposobie rozpatrzenia uwag wniesionych do projektu planu;
3) załącznik Nr 3 - stanowiący rozstrzygnięcie Rady Miejskiej we Wrześni o sposobie realizacji zapisanych w planie inwestycji z zakresu infrastruktury technicznej, które należą do zadań własnych gminy oraz zasadach ich finansowania.
§ 2.
Ilekroć w uchwale jest mowa o:
1) działce – należy przez to rozumieć działkę budowlaną w rozumieniu przepisów o planowaniu i zagospodarowaniu przestrzennym, stanowiącą obszar, na którym może być realizowane zamierzenie inwestycyjne, do którego mają zastosowanie uregulowania zawarte w uchwale;
2) infrastrukturze technicznej – należy przez to rozumieć wybudowane pod ziemią, na ziemi albo nad ziemią sieci lub urządzenia wodociągowe, kanalizacyjne, ciepłownicze, elektryczne, gazowe i telekomunikacyjne, zgodnie z przepisami odrębnymi;
3) obowiązującej linii zabudowy – należy przez to rozumieć linię wyznaczoną na rysunku planu, zgodnie z którą należy obowiązkowo lokalizować zabudowę;
4) nieprzekraczalnej linii zabudowy – należy przez to rozumieć linię określającą dopuszczalną minimalną odległość budynku lub obiektu od linii rozgraniczającej drogi;
5) ogrodzeniu pełnym – należy przez to rozumieć ogrodzenie, w którym udział powierzchni ażurowej wynosi mniej niż 30%;
6) powierzchni zabudowy – należy przez to rozumieć powierzchnię wszystkich budynków zlokalizowanych na działce, mierzoną po obrysie ścian zewnętrznych, bez schodów, ramp, tarasów, zadaszeń, wiatrołapów;
7) terenie zieleni – należy przez to rozumieć sumę powierzchni biologicznie czynnych, pokrytych roślinnością trawiastą, zakrzewionych, zadrzewionych lub urządzonych jako oczka wodne;
8) reklamie – należy przez to rozumieć nośnik informacji wizualnej w jakiejkolwiek materialnej formie wraz z elementami konstrukcyjnymi i zamocowaniami, niebędący szyldem, tablicą informacyjną lub znakiem w rozumieniu przepisów o znakach i sygnałach drogowych;
9) terenie – należy przez to rozumieć powierzchnię o określonym rodzaju przeznaczenia podstawowego, stanowiącą najmniejszą wydzieloną liniami rozgraniczającymi jednostkę ustaleń planu, oznaczoną numerem i symbolem literowym, dla której obowiązują ustalenia szczegółowe.
§ 3.
Na obszarze objętym planem ustala się następujące przeznaczenie terenów:
1) Tereny zabudowy mieszkaniowej jednorodzinnej, oznaczone na rysunku planu symbolami 1MN, 2MN, 3MN;
2) Teren drogi publicznej klasy drogi dojazdowej, oznaczony na rysunku planu symbolem KD-D;
3) Teren ciągu pieszo-jezdnego, oznaczony na rysunku planu symbolem KD-X;
4) Tereny dróg wewnętrznych, oznaczone na rysunku planu symbolami 1KDW, 2KDW, 3KDW, 4KDW, 5KDW, 6KDW, 7KDW, 8KDW;
5) Tereny infrastruktury technicznej – elektroenergetyka, oznaczony na rysunku planu symbolami 1E, 2E.
§ 4.
W zakresie zasad ochrony i kształtowania ładu przestrzennego ustala się:
1) zakaz lokalizacji i rozbudowy obiektów budowlanych i urządzeń, które wpływają negatywnie na ład przestrzenny, a w tym:
a) wolnostojących reklam,
b) tymczasowych obiektów budowlanych, z wyjątkiem urządzeń zaplecza budów lokalizowanych w bezpośrednim sąsiedztwie terenu budowy,
c) ogrodzeń pełnych z elementów prefabrykowanych;
2) lokalizację obiektów małej architektury jednorodnych stylistycznie.
§ 5.
W zakresie zasad ochrony środowiska, przyrody i krajobrazu kulturowego ustala się:
1) zakaz lokalizacji przedsięwzięć mogących zawsze znacząco oddziaływać na środowisko określonych w przepisach odrębnych z wyjątkiem lokalizacji inwestycji celu publicznego;
2) dopuszczenie stosowania szczelnych zbiorników bezodpływowych, z których ścieki będą systematycznie wywożone przez koncesjonowanego przewoźnika do oczyszczalni ścieków;
3) ochronę powierzchni ziemi, powietrza i wód zgodnie z przepisami odrębnymi i polityką gminy w zakresie ochrony środowiska;
4) wszelkie oddziaływania na środowisko wynikające z realizacji ustaleń planu nie mogą powodować przekroczenia standardów jakości środowiska, określonych przepisami odrębnymi, poza terenem do którego inwestor posiada tytuł prawny;
5) zastosowanie zabezpieczeń i szczelnych nawierzchni przeznaczonych dla postoju i prowadzenia ruchu kołowego przed infiltracją zanieczyszczeń wód opadowych do środowiska gruntowo-wodnego i odprowadzenie ścieków z tych nawierzchni do kanalizacji deszczowej po uprzednim podczyszczeniu do standardów wymaganych przepisami odrębnymi;
6) gromadzenie i segregację odpadów w miejscach ich powstawania oraz zagospodarowanie ich zgodnie z gminnym planem gospodarki odpadami i w sposób zabezpieczający środowisko gruntowo-wodne przed zanieczyszczeniem zgodnie z przepisami odrębnymi;
7) sposób postępowania z masami ziemnymi powstającymi w związku z realizacją ustaleń planu zgodnie z gminnym planem gospodarki odpadami i przepisami odrębnymi;
8) zagospodarowanie zielenią wszystkich powierzchni wolnych od utwardzenia na terenach dróg publicznych;
9) wskazuje się, że tereny 1MN, 2MN, 3MN należą do terenów, dla których obowiązują dopuszczalne poziomy hałasu jak dla terenów zabudowy mieszkaniowej jednorodzinnej, zgodnie z przepisami odrębnymi;
10) do wytworzenia energii dla celów grzewczych należy stosować paliwa płynne, gazowe i stałe charakteryzujące się niskimi wskaźnikami emisji lub alternatywne źródła energii – energia wiatru, słońca i geotermalna;
11) realizacja inwestycji wymaga szczegółowego rozpoznania geotechnicznych warunków posadowienia fundamentów obiektów budowlanych.
§ 6.
Zasady ochrony dziedzictwa kulturowego i zabytków oraz dóbr kultury współczesnej.
Dla ochrony archeologicznego dziedzictwa kulturowego ustala się nakaz uzgodnienia z Wielkopolskim Wojewódzkim Konserwatorem Zabytków zakresu prac archeologicznych w związku z prowadzeniem wszelkich inwestycji związanych z zabudowaniem i zagospodarowaniem przedmiotowego terenu, a wymagających prac ziemnych.
§ 7.
W zakresie wymagań wynikających z potrzeb kształtowania przestrzeni publicznych ustala się:
1) oświetlenie terenu oraz zastosowanie trwałych i estetycznych elementów urządzenia;
2) dopuszczenie lokalizowania obiektów małej architektury, z uwzględnieniem § 4 pkt. 2
§ 8.
Na terenach zabudowy mieszkaniowej jednorodzinnej, oznaczonych na rysunku planu symbolami 1MN, 2MN, 3MN ustala się następujące parametry i wskaźniki kształtowania zabudowy oraz zagospodarowania terenu:
1) dopuszcza się lokalizację:
a) jednego budynku mieszkalnego jednorodzinnego wolnostojącego na działce budowlanej,
b) jednego budynku gospodarczego na działce budowlanej,
c) jednego budynku garażowego na działce budowlanej,
d) dojść i dojazdów związanych z funkcją terenu oraz dojazdów przeciwpożarowych,
e) małej architektury i oświetlenia terenu;
2) zasady zagospodarowania terenu:
a) dopuszcza się rozbudowę i remonty istniejących zabudowań pod warunkiem zachowania ustaleń niniejszej uchwały,
b) maksymalna sumaryczna powierzchnia zabudowy – do 25% powierzchni działki,
c) obowiązek zachowania – 50% powierzchni działki w postaci terenów zieleni,
d) nieprzekraczalne linie zabudowy zgodnie z rysunkiem planu,
e) minimalna szerokość frontu działki – 20 m,
f) minimalna powierzchnia działki dla zabudowy wolnostojącej – 500 m2;
3) zasady i warunki zabudowy:
a) wysokość zabudowy budynków mieszkalnych do 9 m,
b) dopuszczalna liczba kondygnacji: jedna kondygnacja podziemna, dwie nadziemne w tym poddasze użytkowe,
a) obowiązują dachy skośne o nachyleniu połaci od 30 do 45 stopni,
b) dla działki o numerze ewidencyjnym 302/9 dopuszczenie dachów skośnych o nachyleniu połaci od 20 do 45 stopni nad garażem i tarasami,
c) dla działki o numerze ewidencyjnym 302/1 dopuszczenie dachów skośnych o nachyleniu połaci od 18 do 45 stopni nad garażem,
d) obiekty gospodarcze i garażowe jednokondygnacyjne,
e) kierunek głównej kalenicy dachu na budynku mieszkalnym równoległy do frontu budynku.
§ 9.
Na terenie drogi publicznej, oznaczonym na rysunku planu symbolem KD-D ustala się:
1) klasyfikację: dla terenu KD-D drogi klasy dojazdowej;
2) dla terenu KD-D zgodnie z rysunkiem planu:
a) szerokość w liniach rozgraniczających 12 m, na skrzyżowaniach i załamaniach zastosować ścięcia linii rozgraniczających nie mniejsze niż 5,0 x 5,0 m,
b) układ jednojezdniowy, z dwoma pasami ruchu z dopuszczeniem zwiększenia ilości pasów ruchu w strefach skrzyżowań,
c) poszerzenie linii rozgraniczających w miejscach jak na rysunku planu pod place do nawracania zgodnie z przepisami odrębnymi,
d) dwustronne chodniki, z dopuszczeniem zmiany na ciągi pieszo-rowerowe,
e) nasadzenia drzew przydrożnych zgodnie z warunkami siedliskowymi.
§ 10.
Na terenie ciągu pieszo-jezdnego, oznaczonym na rysunku planu symbolem KD-X ustala się:
1. klasyfikację: dla terenu KD-X ciągu pieszo-jezdnego;
2. dla terenu KD-X przekrój zgodnie z rysunkiem planu:
a) jednoprzestrzenny z pasem dla ruchu pieszego i kołowego,
b) szerokość w liniach rozgraniczających 8 m, na skrzyżowaniach i załamaniach zastosować ścięcia linii rozgraniczających nie mniejsze niż 5,0 x 5,0 m;
3. dopuszcza się zmianę klasyfikacji ciągu pieszo-jezdnego na drogę publiczną po przebudowie do parametrów dogi publicznej.
§ 11.
Na terenach dróg wewnętrznych, oznaczonych na rysunku planu symbolami 1KDW, 2KDW, 3KDW, 4KDW, 5KDW, 6KDW, 7KDW, 8KDW ustala się:
1) klasyfikację: dla terenów 1KDW, 2KDW, 3KDW, 4KDW, 5KDW, 6KDW, 7KDW, 8KDW drogi wewnętrznej;
2) dla terenów 1KDW, 2KDW, 3KDW, 4KDW, 5KDW, 6KDW, 7KDW, 8KDW przekrój zgodnie z rysunkiem planu:
a) jednoprzestrzenny z pasem dla ruchu pieszego i kołowego,
b) szerokość w liniach rozgraniczających 8 m, na skrzyżowaniach i załamaniach zastosować ścięcia linii rozgraniczających nie mniejsze niż 5,0 x 5,0 m,
c) poszerzenie linii rozgraniczających w miejscach jak na rysunku planu pod place do nawracania zgodnie z przepisami odrębnymi.
§ 12.
Na terenach infrastruktury technicznej – elektroenergetyka, oznaczonych na rysunku planu symbolami 1E, 2E ustala się następujące parametry zagospodarowania terenu:
1) lokalizację: stacji transformatorowych;
2) zasady zagospodarowania terenu:
a) dla lokalizacji urządzeń elektroenergetycznych nie obowiązują nieprzekraczalne linie zabudowy,
b) dopuszcza się wprowadzenie zieleni izolacyjnej,
c) dopuszcza się realizację dojazdów gospodarczych i przeciwpożarowych,
d) nakaz wykonania niezbędnych prac z zakresu: regulacji, w celu utrzymania terenu, nasadzeń lub wycinki drzew i krzewów oraz innych działań związanych z konserwacją i utrzymaniem zieleni,
e) w sprawach nieuregulowanych niniejszą uchwałą w zakresie użytkowania terenów E mają zastosowanie przepisy odrębne.
§ 13.
Nie określa się granic i sposobów zagospodarowania terenów lub obiektów podlegających ochronie, ustalonych na podstawie przepisów odrębnych, w tym terenów górniczych, a także narażonych na niebezpieczeństwo powodzi oraz zagrożonych osuwaniem się mas ziemnych, ze względu na ich nie występowanie na obszarze objętym planem.
§ 14.
W planie nie wyznacza się terenów wymagających wszczęcia postępowania scalania i podziału nieruchomości w rozumieniu przepisów odrębnych; nie określa się także szczegółowych zasad i warunków scalania i podziału nieruchomości w rozumieniu przepisów odrębnych.
§ 15.
Nie określa się szczególnych warunków zagospodarowania terenów oraz ograniczenia w ich użytkowaniu, w tym zakazu zabudowy zgodnie z przepisami odrębnymi.
§ 16.
W zakresie zasad modernizacji, rozbudowy i budowy systemów komunikacji ustala się:
1) zachowanie ciągłości powiązań elementów pasa drogowego, w szczególności jezdni i chodników w granicy obszaru planu oraz z zewnętrznym układem komunikacyjnym z uwzględnieniem ustaleń planu;
2) dopuszczenie etapowania przy rozbudowie układu drogowego zgodnie z przepisami odrębnymi;
3) dopuszczenie lokalizacji dodatkowych, nie wymienionych planem elementów układu komunikacyjnego, w tym drogowych obiektów inżynierskich;
4) parametry układu komunikacyjnego zgodnie z klasyfikacją i przepisami odrębnymi;
5) w zależności od programu funkcjonalnego zapewnienie na działce pełnych potrzeb parkingowych zgodnie z przepisami odrębnymi, przy czym nie mniej niż 2 stanowiska postojowe na każdy dom w zabudowie jednorodzinnej.
§ 17.
W zakresie zasad modernizacji, rozbudowy i budowy infrastruktury technicznej, ustala się:
1) zachowanie istniejącej sieci infrastruktury technicznej z dopuszczeniem jej remontu i rozbudowy, a w przypadku lokalizacji poza terenami komunikacji przełożenia jej na tereny komunikacji;
2) odprowadzenie ścieków do kanalizacji sanitarnej, a na obszarach, na których nie ma kanalizacji sanitarnej dopuszczenie odprowadzania ścieków do zbiorników bezodpływowych i obowiązek ich wywozu do oczyszczalni ścieków do czasu realizacji kanalizacji sanitarnej;
3) zagospodarowanie wód opadowych i roztopowych pochodzących z terenów nieutwardzonych oraz połaci dachowych w granicach własnej działki;
4) odprowadzenie ścieków w postaci wód opadowych i roztopowych z powierzchni zanieczyszczonych o trwałej nawierzchni do kanalizacji deszczowej zgodnie z przepisami odrębnymi lub retencjonowanie i wtórne wykorzystanie do celów nawodnień po uprzednim podczyszczeniu do jakości wymaganej przepisami odrębnymi;
5) zaopatrzenie w energię elektryczną z sieci elektroenergetycznej;
6) lokalizacja stacji transformatorowo-rozdzielczych na samodzielnych działkach z dostępem do drogi publicznej;
7) dopuszczenie lokalizacji inwestycji celu publicznego z zakresu łączności publicznej, jeżeli taka inwestycja jest zgodna z przepisami odrębnymi;
8) do celów grzewczych należy stosować paliwa charakteryzujące się niskimi wskaźnikami emisyjnymi takie jak: paliwa płynne, gazowe, stałe – drewno, biomasa, lub alternatywne źródła energii;
9) zaopatrzenie w gaz z sieci, a do czasu wybudowania sieci gazowej dopuszcza się stosowanie gazu płynnego;
10) zaopatrzenie w wodę z wodociągu gminnego po rozbudowie sieci wodociągowej;
11) zakaz wprowadzania ścieków do wód lub do ziemi;
12) przebudowę urządzeń melioracji szczegółowej w miarę postępu rozwoju infrastruktury budowlanej.
§ 18.
Nie określa się innych niż dotychczasowe sposobów i terminów tymczasowego zagospodarowania, urządzenia i użytkowania terenów, do czasu ich zagospodarowania zgodnego z uchwałą.
§ 19.
Ustala się 15 % stawkę, o której mowa w art. 36 ust. 4 ustawy z dnia 27 marca 2003 r. o planowaniu i zagospodarowaniu przestrzennym, służącą naliczeniu jednorazowej opłaty z tytułu wzrostu wartości nieruchomości, określoną przy uwzględnieniu przeznaczenia terenu, w związku z uchwaleniem planu.
§ 20.
Wykonanie uchwały powierza się Burmistrzowi Miasta i Gminy Września.
§ 21.
Uchwała wchodzi w życie po upływie 30 dni od dnia ogłoszenia jej w Dzienniku Urzędowym Województwa Wielkopolskiego.
Przewodnicząca Rady Miejskiej we Wrześni
/-/Bożena Nowacka
Uzasadnienie
do uchwały Nr XXXIV/453/2010
Rady Miejskiej we Wrześni
z dnia 8 listopada 2010 r.
w sprawie: miejscowego planu zagospodarowania przestrzennego terenów pod budownictwo mieszkaniowe, obejmującego obszar ograniczony ulicami Ks. Jakubowskiego i Chabrową w Kaczanowie
W dniu 16 grudnia 2008 r. Rada Miejska we Wrześni podjęła Uchwałę Nr XIX/254/2008 w sprawie przystąpienia do sporządzenia miejscowego planu zagospodarowania przestrzennego terenów pod budownictwo mieszkaniowe, obejmującego obszar ograniczony ulicami Ks. Jakubowskiego i Chabrową w Kaczanowie.
Obwieszczenie o przystąpieniu do sporządzenia planu zostało wywieszone na tablicy ogłoszeń w dniu 03.02.2009 r. oraz opublikowane w biuletynie Wieści z Ratusza. O przystąpieniu do sporządzenia planu powiadomiono organy właściwe do opiniowania i uzgadniania projektu planu miejscowego.
Projekt planu został dnia 14.08.2010 r. pozytywnie zaopiniowany przez Gminną Komisję Urbanistyczno – Architektoniczną.
Projekt planu został również przesłany do zaopiniowania i uzgodnienia dnia 23.09.2010 r. właściwym organom administracji stosownie do przedmiotu planu. Projekt planu uzyskał pozytywne opinie i uzgodnienia od wszystkich instytucji.
Dnia 15.12.2009 r. Burmistrz Miasta i Gminy Września wystąpił do Ministra Rolnictwa i Rozwoju Wsi o uzyskanie zgody na zmianę przeznaczenia gruntów rolnych na cele nierolnicze. Decyzją Nr GZ.tr.057-602-126/10 z dnia 26.03.2010 r. Minister wyraził zgodę na zmianę przeznaczenia gruntów na cele nierolnicze.
Dnia 14.05.2010 r. wywieszono na tablicy ogłoszeń obwieszczenie o wyłożeniu do publicznego wglądu projektu planu a w biuletynie Wieści z Ratusza w dniu 15.05.2010 r. opublikowano komunikat. W dniu 9.06.2010 r. odbyła się dyskusja publiczna nad przyjętymi w projekcie miejscowego planu rozwiązaniami. W okresie podanym w ogłoszeniu wniesiono uwagi.
Wobec wyczerpania pełnej procedury opracowania projektu planu miejscowego, uzasadnionym jest skierowanie go do uchwalenia przez Radę Miejską we Wrześni.
Podsumowanie
zawierające uzasadnienie wyboru przyjętego dokumentu w odniesieniu do rozpatrywanych rozwiązań alternatywnych wraz z informacją, o której mowa w art. 55 ust. 3 ustawy z dnia 3 października 2008 r. o udostępnianiu informacji o środowisku i jego ochronie, udziale społeczeństwa w ochronie środowiska oraz o ocenach oddziaływania na środowisko (Dz. U. Nr 199, poz. 1227 ze zmianami).
Zgodnie z ustawą o udostępnianiu informacji o środowisku i jego ochronie, udziale społeczeństwa w ochronie środowiska oraz o ocenach oddziaływania na środowisko (Dz. U. z 2008 r. Nr 199, poz. 1227 ze zmianami) do prognozy oddziaływania na środowisko pisemne dołącza się podsumowanie zawierające uzasadnienie wyboru przyjętego dokumentu w odniesieniu do rozpatrywanych rozwiązań alternatywnych.
Miejscowy plan zagospodarowania przestrzennego terenów pod budownictwo mieszkaniowe, obejmujący obszar ograniczony ulicami Ks. Jakubowskiego i Chabrową w Kaczanowie, został sporządzony na podstawie ustawy z dnia 27 marca 2003 r. o planowaniu i zagospodarowaniu przestrzennym (Dz. U. Z 2003 r. Nr 80, poz. 717 ze zmianami), w związku z Uchwałą Nr XIX/254/2008 Rady Miejskiej we Wrześni z dnia 16 grudnia 2008 r.
Podczas sporządzania projektu planu miejscowego przeprowadzano liczne konsultacje i uzgodnienia, podczas których rozważane były różne warianty rozwiązań alternatywnych. Ostatecznie wybrana koncepcja urbanistyczna nie różni się w zasadniczy sposób w zakresie wpływu na charakter oddziaływania na środowisko od innych rozważanych wariantów projektowych. Ponadto przyjęte w dokumencie rozwiązania planistyczne są odzwierciedleniem kierunków rozwoju przestrzennego miasta wyznaczonych w Zmianie studium uwarunkowań i kierunków zagospodarowania przestrzennego miasta i gminy Września przyjętej Uchwałą Nr XIV/190/2008 Rady Miejskiej we Wrześni z dnia 15 maja 2008 r. Jedynym rozwiązaniem alternatywnym byłoby odstąpienie od sporządzenia planu miejscowego. Skutkowałoby to jednak utrzymaniem obecnego przeznaczenia obszaru. Ponadto ewentualny brak realizacji planu spowodowałby zahamowanie rozwoju miasta, a przede wszystkim nie uruchomiłby nowych terenów inwestycyjnych. Niezrealizowanie postanowień planu spowodowałoby także umniejszenie potencjalnych dochodów miasta z tytułu m.in. podatku gruntowego od terenów budowlanych zajętych pod posadowienie budynków. Ponadto właściciele nieruchomości, na których zlokalizowane będą nowe inwestycje, nie otrzymaliby opłat za sprzedaż gruntów. Brak uregulowań prawa miejscowego dotyczącego ochrony i kształtowania środowiska przyczyniłby się do zanieczyszczeń środowiska. Obowiązująca ustawa o planowaniu i zagospodarowaniu przestrzennym wprowadza możliwość realizacji niektórych inwestycji na podstawie decyzji o warunkach zabudowy w przypadku braku planu miejscowego. Rozwój przestrzenny tylko na podstawie decyzji o warunkach zabudowy może doprowadzać do niekontrolowanego rozlewania się terenów zabudowanych. Procedura planistyczna umożliwia całościową analizę uwarunkowań danego terenu i wyznaczenie nie tylko warunków określających realizację samej inwestycji, ale również określenie warunków kształtowania terenów przyległych. Brak realizacji projektu planu byłby niekorzystny z punktu widzenia ochrony środowiska przyrodniczego. Dokument ten wprowadza szereg ustaleń dotyczących eliminacji lub ograniczenia negatywnych oddziaływań na środowisko.
I. Informacje o sposobie wykorzystania ustaleń zawartych w prognozie oddziaływania na środowisko dotyczącej projektu przedmiotowego planu.
Prognoza dotyczy oceny oddziaływania na środowisko projektu miejscowego planu zagospodarowania przestrzennego terenów pod budownictwo mieszkaniowe, obejmującego obszar ograniczony ulicami Ks. Jakubowskiego i Chabrową w Kaczanowie.
Na obszarze objętym planem ustala się następujące przeznaczenie terenów: tereny zabudowy mieszkaniowej jednorodzinnej, teren drogi publicznej, teren ciągu pieszo-jezdnego, tereny dróg wewnętrznych i tereny infrastruktury technicznej – elektroenergetyka.
W ustaleniach planu wprowadza się obowiązek dostosowania realizowanych elementów zagospodarowania do pełnionych funkcji, krajobrazu, architektury istniejącego i planowanego otoczenia. Ustalenia planu będą miały wpływ na stan i funkcjonowanie środowiska przyrodniczego. Przekształcenie środowiska sprowadza się głównie do:
- prac ziemnych związanych z zainwestowaniem i uzbrojeniem terenu,
- wytwarzania odpadów, w tym odpadów niebezpiecznych,
- pogorszenia klimatu akustycznego,
- pogorszenie walorów krajobrazowych,
- wzrostu zanieczyszczenia powietrza spalinami od środków komunikacji.
W związku z działaniami na rzecz ochrony środowiska przedmiotowy plan ustala w szczególności:
1. zakaz lokalizacji przedsięwzięć mogących zawsze znacząco oddziaływać na środowisko określonych w przepisach odrębnych z wyjątkiem lokalizacji inwestycji celu publicznego;
2. dopuszczenie stosowania szczelnych zbiorników bezodpływowych, z których ścieki będą systematycznie wywożone przez koncesjonowanego przewoźnika do oczyszczalni ścieków;
3. ochronę powierzchni ziemi, powietrza i wód zgodnie z przepisami odrębnymi i polityką gminy w zakresie ochrony środowiska;
4. wszelkie oddziaływania na środowisko wynikające z realizacji ustaleń planu nie mogą powodować przekroczenia standardów jakości środowiska, określonych przepisami odrębnymi, poza terenem do którego inwestor posiada tytuł prawny;
5. zastosowanie zabezpieczeń i szczelnych nawierzchni przeznaczonych dla postoju i prowadzenia ruchu kołowego przed infiltracją zanieczyszczeń wód opadowych do środowiska gruntowo-wodnego i odprowadzenie ścieków z tych nawierzchni do kanalizacji deszczowej po uprzednim podczyszczeniu do standardów wymaganych przepisami odrębnymi;
6. gromadzenie i segregację odpadów w miejscach ich powstawania oraz zagospodarowanie ich zgodnie z gminnym planem gospodarki odpadami i w sposób zabezpieczający środowisko gruntowo-wodne przed zanieczyszczeniem zgodnie z przepisami odrębnymi;
7. sposób postępowania z masami ziemnymi powstającymi w związku z realizacją ustaleń planu zgodnie z gminnym planem gospodarki odpadami i przepisami odrębnymi;
8. zagospodarowanie zielenią wszystkich powierzchni wolnych od utwardzenia na terenach dróg publicznych;
9. wskazuje się, że tereny 1MN, 2MN, 3MN należą do terenów, dla których obowiązują dopuszczalne poziomy hałasu jak dla terenów zabudowy mieszkaniowej jednorodzinnej, zgodnie z przepisami odrębnymi;
10. do wytworzenia energii dla celów grzewczych należy stosować paliwa płynne, gazowe i stałe charakteryzujące się niskimi wskaźnikami emisji lub alternatywne źródła energii – energia wiatru, słońca i geotermalna;
11. realizacja inwestycji wymaga szczegółowego rozpoznania geotechnicznych warunków posadowienia fundamentów obiektów budowlanych..
W podsumowaniu sporządzona prognoza uznaje, iż na etapie inwestycyjnym oddziaływanie na środowisko ograniczone będzie do prac ziemnych związanych z wykopami pod fundamenty i pod infrastrukturę techniczną oraz budową dróg a także wystąpią oddziaływania okresowe związane z transportem urobku z wykopów i materiałów budowlanych. W wyniku przeprowadzonego monitoringu flory i fauny nie stwierdzono występowania, na terenach bezpośrednio przeznaczonych pod zabudowę oraz w ich sąsiedztwie siedlisk gatunków roślin i zwierząt wymienionych w Rozporządzeniu Ministra Środowiska z dnia 16 maja 2005 r. w sprawie typów siedlisk przyrodniczych oraz gatunków roślin i zwierząt, wymagających ochrony w formie wyznaczenia obszarów Natura 2000 ani roślin chronionych prawem polskim wymienionych w Rozporządzeniu Ministra Środowiska z dnia 9 lipca 2004 r. w sprawie gatunków dziko występujących roślin objętych ochroną (Dz. U. nr 168, poz. 1764). Planowana lokalizacja inwestycji nie wpływa na integralność i powiązanie form ochrony przyrody, w tym obszarów podlegających ochronie w formie wyznaczenia obszaru Natura 2000. Dotychczasowa wiedza na temat świata zwierząt na obszarze planu i stopnia wykorzystania przez nie tego terenu wskazuje, że projektowane inwestycje nie spowodują negatywnego istotnego wpływu na te osobniki.
Planowana zabudowa będzie oddziaływać negatywnie na walory krajobrazowe terenu. Realizacja ustaleń planu nie będzie miała natomiast negatywnego wpływu na zabytki i dobra kultury współczesnej. Ustalenia planu wprowadzają konieczność uzgodnienia z Wielkopolskim Wojewódzkim Konserwatorem Zabytków zakresu prac archeologicznych w związku z prowadzeniem wszelkich inwestycji związanych z zabudowaniem i zagospodarowaniem przedmiotowego terenu, a wymagających prac ziemnych. Planowane inwestycje mogą pogorszyć klimat akustyczny. Dla zlokalizowanej na obszarze planu zabudowy chronionej akustycznie, będą zachowane dopuszczalne poziomy hałasu. W końcowej części prognozy przedstawiono również rozwiązania eliminujące lub ograniczające ewentualne negatywne oddziaływania na środowisko ustaleń projektu planu na środowisko. Ustalenia planu nie wykazują możliwości oddziaływania transgranicznego.
Realizacja ustaleń planu przyczyni się do przekształcenia większości omawianego obszaru w tereny mieszkaniowe. Ustalenia planu uwzględniają większość ograniczeń i uwarunkowań ekofizjograficznych, wymogi kształtowania krajobrazu, a także istniejące ustawodawstwo szczególne.
W związku z powyższymi uwagami, przyjęcie analizowanego rozwiązania planistycznego nie wywoła diametralnych zmian w środowisku. Projekt w zakresie proponowanych rozwiązań, respektuje zasady zrównoważonego rozwoju oraz uwzględnia ograniczenia ryzyka powstania zagrożeń dla środowiska przyrodniczego
Oceniając projekt miejscowego planu zagospodarowania przestrzennego należy stwierdzić, że uwzględnia on zasadę zrównoważonego rozwoju. Realizacja ustaleń planu wiązać się będzie ze zmianami w środowisku przyrodniczym. W ogólnej ocenie oddziaływanie na środowisko przyrodnicze nie będzie znaczące pod warunkiem zastosowania wszystkich ustaleń planu miejscowego. Określone w planie ustalenia, a co za tym idzie działania, wskazują, że ich realizacja może i powinna odbywać się w sposób ograniczający lub zapobiegający negatywnym skutkom środowiskowym planowanego zagospodarowania.
II. Informacja o sposobie wykorzystania opinii organów ochrony środowiska.
Stosownie do art. 53 ustawy z dnia 3 października 2008 r. o udostępnieniu informacji o środowisku i jego ochronie, udziale społeczeństwa w ochronie środowiska oraz ocenach oddziaływania na środowisko, dnia 23.09.2009 r. Burmistrz Miasta i Gminy Września wystąpił o uzgodnienie zakresu i stopnia szczegółowości informacji wymaganych w prognozie oddziaływania na środowisko do Regionalnego Dyrektora Ochrony Środowiska w Poznaniu oraz Państwowego Powiatowego Inspektora Sanitarnego we Wrześni. Wyżej wymienione uzgodnienia odnośnie zakresu i stopnia szczegółowości prognozy uzyskał w dniu 27.04.2009 r. (RDOŚ) i 31.03.2009 r. (PPIS).
Pismem nr NS-72/5-15(2)/2009 z dnia 25.09.2009 r. Państwowy Powiatowy Inspektor Sanitarny we Wrześni uzgodnił pozytywnie ww. projekt miejscowego planu zagospodarowania przestrzennego wraz z prognozą.
Pismem nr RDOŚ-30-00.III-7041-1600/09/ak z dnia 12.10.2009 r. Regionalny Dyrektor Ochrony Środowiska w Poznaniu pozytywnie zaopiniował projekt miejscowego planu wraz z prognozą oddziaływania na środowisko.
III. Informacja o sposobie wykorzystania wyników udziału społeczeństwa.
Zgodnie z art. 17 pkt 10 i 11 ww. ustawy o planowaniu i zagospodarowaniu przestrzennym, dnia 15.05.2010 r. ukazało się ogłoszenie w biuletynie Wieści z Ratusza, a 14.05.2010 r. na tablicy ogłoszeń Urzędu Miasta i Gminy Września wywieszone było obwieszczenie Burmistrza Miasta i Gminy Września o terminie wyłożenia do publicznego wglądu projektu miejscowego planu zagospodarowania przestrzennego terenów pod budownictwo mieszkaniowe, obejmującego obszar ograniczony ulicami Ks. Jakubowskiego i Chabrową w Kaczanowie wraz z prognozą oddziaływania na środowisko w dniach od 25.05.2010 r. do 15.06.2010 r. Dyskusja publiczna nad przyjętymi w projekcie planu rozwiązaniami odbyła się w dniu 9.06.2010 r. Uwagi do projektu planu i do prognozy mogły być składane w terminie do dnia 29.06.2010 r. W okresie podanym w ogłoszeniu wniesiono uwagi, których część została uwzględniona.
Na podstawie art. 20 ust. 1 ustawy z dnia 27 marca 2003 r. o planowaniu i zagospodarowaniu przestrzennym Rada Miejska we Wrześni uchwaliła plan w dniu 8 listopada 2010 r.
IV. Informacja o metodach i częstotliwości przeprowadzenia monitoringu skutków realizacji postanowień dokumentu.
Kontrole przestrzegania przepisów dotyczących ochrony środowiska i racjonalnego wykorzystania zasobów przyrody prowadzi na tym terenie m.in. Wojewódzki Inspektorat Ochrony Środowiska w Koninie, monitorując poszczególne komponenty środowiska, takie jak: wody, powietrze, gleby, klimat akustyczny, promieniowanie elektroenergetyczne i inne. Proponuje się także wykonywanie okresowych przeglądów stanu zainwestowania obszaru i realizacji ustaleń planu przez administrację samorządową w celu oceny prowadzonej polityki przestrzennej. Organ sporządzający miejscowy plan zagospodarowania przestrzennego zobowiązany jest przynajmniej raz w czasie kadencji Rady do przeprowadzenia analizy zmian w zagospodarowaniu przestrzennym zgodnie z art. 32 ustawy z dnia 23 marca 2003 r. o planowaniu i zagospodarowaniu przestrzennym (Dz. U. Nr 80, poz. 717 z późn. zm.).
Należy prowadzić bieżące analizy, które umożliwią, jeśli pojawi się taka potrzeba, wprowadzenie odpowiednich zmian i korekt do miejscowego planu zagospodarowania przestrzennego. Do podstawowych wskaźników, jakie należy uwzględnić w procedurze monitorowania skutków realizacji ustaleń planu można zaliczyć:
-
przyrost długości dróg publicznych i wewnętrznych (w km w skali roku),
-
przyrost długości sieci kanalizacyjnej i liczby podłączeń (w km w skali roku),
-
przyrost długości sieci wodociągowej i liczby podłączeń (w km w skali roku),
-
przyrost powierzchni terenów zabudowanych (w ha w ciągu roku),
-
przyrost powierzchni biologicznie czynnych (w ha w ciągu roku),
-
wydane pozwolenia na budowę (liczba pozwoleń na budowę domów mieszkalnych w ciągu roku).
POPRZEDNIĄ
NASTĘPNĄ
NIEŚCISŁOŚĆ



