BIP Września

Technologia google logo wewnętrzna
Strona Główna . . Baza dokumentów . Rejestr zmian . Dostęp do informacji . Statystyki . Kontakt . . . .
Statystyki   »
stronę odwiedziło osób:
14386915
ostatnia aktualizacja BIP'u:
10-09-2020
Portal - Akty prawne i protokoły
UCHWAŁA Nr XXVIII/367/2009

UCHWAŁA Nr XXVIII/367/2009
RADY MIEJSKIEJ WE WRZEŚNI
z dnia 15 grudnia 2009 r.

w sprawie: uchwalenia miejscowego planu zagospodarowania przestrzennego terenów pod aktywizację gospodarczą w Gutowie Wielkim, obszar działek o numerach 195/29, cz. 195/28, 195/26 oraz zmiany miejscowego planu zagospodarowania przestrzennego terenów aktywizacji gospodarczej we Wrześni w rejonie ulicy gen. Sikorskiego.

Na podstawie art. 20 ustawy z dnia 27 marca 2003 r. o planowaniu i zagospodarowaniu przestrzennym (Dz. U. Nr 80, poz. 717 z późn. zm.), Rada Miejska we Wrześni uchwala, co następuje:

§ 1. 1. Uchwala się miejscowy plan zagospodarowania przestrzennego terenów pod aktywizację gospodarczą w Gutowie Wielkim, obszar działek o numerach 195/29, cz. 195/28, 195/26 oraz zmianę miejscowego planu zagospodarowania przestrzennego terenów aktywizacji gospodarczej we Wrześni w rejonie ulicy gen. Sikorskiego po stwierdzeniu jego zgodności z ustaleniami studium uwarunkowań i kierunków zagospodarowania przestrzennego gminy Września zatwierdzonego Uchwałą Nr XIV/108/99 Rady Miejskiej we Wrześni z dnia 27 września 1999 r. ze zmianami: Uchwałą Nr XI/99/03 z dnia 9 lipca 2003 r., Uchwałą Nr XIV/190/2008 z 15.05.2008 r., zwany dalej planem.

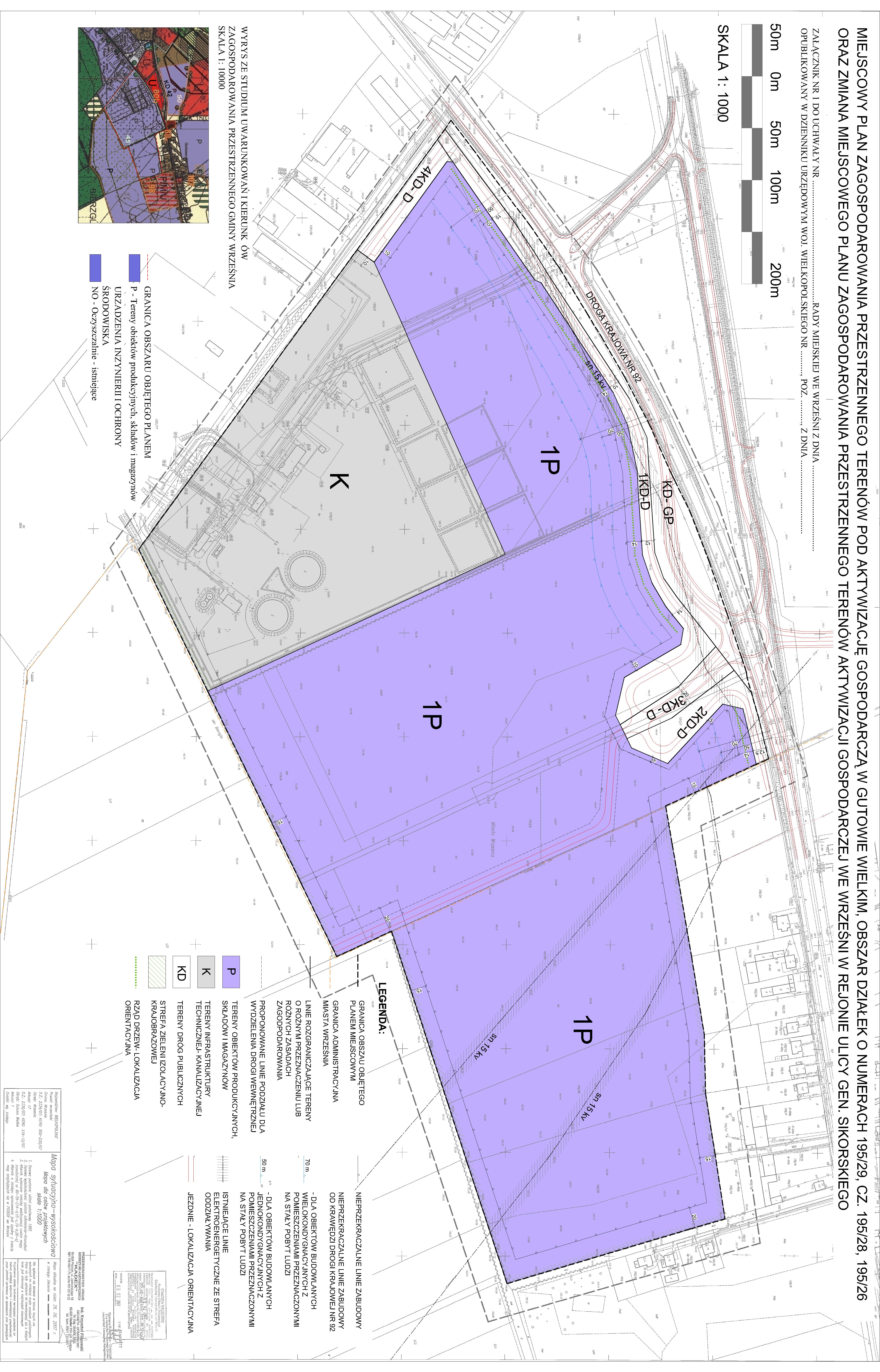
2. Granice obszaru objętego planem oznaczono na rysunku planu w skali 1:1000

3. Integralnymi częściami uchwały są:

1) rysunek planu, o którym mowa w ust. 2 zwany dalej rysunkiem - stanowiący załącznik Nr 1;

2) rozstrzygnięcie Rady Miejskiej we Wrześni w sprawie rozpatrzenia uwag wniesionych do wyłożonego do publicznego wglądu projektu planu - stanowiące załącznik Nr 2;

3) rozstrzygnięcie Rady Miejskiej we Wrześni o sposobie realizacji inwestycji z zakresu infrastruktury technicznej, należących do zadań własnych gminy, oraz o zasadach ich finansowania - stanowiące załącznik Nr 3.

§2.Ilekroć w dalszych przepisach niniejszej uchwały jest mowa o:

1) działce budowlanej - należy przez to rozumieć działkę zdefiniowaną w ustawie o planowaniu i zagospodarowaniu przestrzennym;

2) nieprzekraczalnej linii zabudowy - należy przez to rozumieć linię określającą minimalną odległość, w jakiej mogą się znajdować lica ścian budynków; przed nieprzekraczalną linię zabudowy mogą być sytuowane: wykusze, schody zewnętrzne i pochylnie o głębokości nie przekraczającej 1,5 m od lica ściany budynku, przy zachowaniu przepisów odrębnych;

3) ogrodzeniu ażurowym - należy przez to rozumieć ogrodzenie, w którym część ażurowa stanowi przynajmniej 50% powierzchni całkowitej ogrodzenia;

4) przeznaczeniu dopuszczalnym, funkcji dopuszczalnej - należy przez to rozumieć rodzaje przeznaczenia inne niż podstawowe, które uzupełniają lub wzbogacają przeznaczenie podstawowe,

5) przeznaczeniu podstawowym, funkcji podstawowej - należy przez to rozumieć takie przeznaczenie, które powinno przeważać na danym terenie, wyznaczonym liniami rozgraniczającymi,

6) powierzchni zabudowy - należy przez to rozumieć powierzchnię terenu zajętą przez budynek w stanie wykończonym, wyznaczoną przez rzut pionowy zewnętrznych krawędzi budynku na powierzchnię terenu;

7) reklamie - należy przez to rozumieć nośnik informacji wizualnej w jakiejkolwiek materialnej formie wraz z elementami konstrukcyjnymi i zamocowaniami, nie będący szyldem, tablicą informacyjną lub znakiem w rozumieniu przepisów o znakach i sygnałach;

8) reklamie wielkoprzestrzennej - należy przez to rozumieć reklamę o powierzchni powyżej 15 m2;

9) stacji bazowej telefonii komórkowej – należy przez to rozumieć obiekt radiokomunikacyjny składający się z urządzeń elektro-przesyłowych, konstrukcji wsporczej oraz anten;

10) szyldach - należy przez to rozumieć oznaczenia jednostek organizacyjnych oraz przedsiębiorców, ich siedzib lub miejsc wykonywania działalności,

11) tablicach informacyjnych - należy przez to rozumieć elementy systemu informacji miejskiej, w tym: tablice informujące o nazwie ulicy, numerze domu, oraz tablice z ogłoszeniami;

12) terenie – należy przez to rozumieć obszar o określonym rodzaju przeznaczenia podstawowego, wyznaczony na rysunku planu liniami rozgraniczającymi,

13) zieleni izolacyjno-krajobrazowej – należy przez to rozumieć gęste nasadzenia zieleni ozdobnej, oddzielające poszczególne tereny o różnym przeznaczeniu i wzbogacające krajobraz, w tym zadrzewienia i krzewy, głównie zimozielone, formowane w kształcie pasów o szerokości co najmniej 5,0 m.


§3. Następujące oznaczenia graficzne na rysunku planu są obowiązującymi ustaleniami planu:

1) granica obszaru objętego planem;

2) przeznaczenie terenu – oznaczone kolorem i symbolem literowym;

3) linie rozgraniczające tereny o różnym przeznaczeniu lub różnych zasadach zagospodarowania;

4) nieprzekraczalne linie zabudowy;

5) klasyfikacja dróg publicznych.


§ 4. W planie występują tereny o następującym przeznaczeniu:

1) tereny obiektów produkcyjnych, składów i magazynów, oznaczone symbolem P;

2) tereny infrastruktury technicznej – kanalizacyjnej, oznaczone symbolem K;

3 tereny dróg publicznych, oznaczone symbolem KD.

§ 5. 1. Dla terenu, oznaczonego na rysunku planu symbolem 1P, dla którego obowiązują ustalenia niniejszego paragrafu, w zakresie przeznaczenia terenu ustala się:

1) przeznaczenie podstawowe: obiekty produkcyjne, składy i magazyny;

2) przeznaczenie dopuszczalne: funkcję usługową w powiązaniu z obiektami o przeznaczeniu podstawowym, infrastrukturę techniczną, drogi wewnętrzne;

3) zakaz budowy obiektów handlowych o powierzchni sprzedaży powyżej 2000 m2.

2. W zakresie zasad ochrony i kształtowania ładu przestrzennego ustala się:

1) w obszarze eksponowanym z drogi krajowej nr 92, oznaczonej w planie symbolem KD-GP, lokalizację zabudowy o szczególnych walorach estetycznych i architektonicznych;

2) stosowanie ogrodzeń ażurowych, wzbogaconych zielenią, z zakazem stosowania prefabrykowanych ogrodzeń betonowych;

3) zakaz budowy napowietrznych sieci elektroenergetycznych i telekomunikacyjnych.

3. W zakresie zasad ochrony środowiska, przyrody i krajobrazu kulturowego ustala się:

1) nasadzenie rzędu drzew wzdłuż północnej linii rozgraniczającej terenu, zgodnie z rysunkiem planu oraz z uwzględnieniem wymogów sieci infrastruktury technicznej;

2) lokalizację zieleni izolacyjno-krajobrazowej wzdłuż południowej, północnej i wschodniej granicy planu, zgodnie z oznaczeniem na rysunku planu;

3) nasadzenia drzew i krzewów oraz zagospodarowanie zielenią ozdobną wszystkich wolnych od utwardzenia fragmentów terenów, z uwzględnieniem wymagań sieci infrastruktury technicznej;

4) odprowadzenie ścieków bytowych i komunalnych do sieci kanalizacji sanitarnej;

5) zakaz lokalizacji przydomowych oczyszczalni ścieków;

6) docelowo odprowadzenie wód opadowych i roztopowych do sieci kanalizacji deszczowej z uwzględnieniem ustaleń ust. 10 pkt. 8;

7) zapewnienie dotrzymania standardów jakości środowiska określonych w przepisach odrębnych w granicach terenu, do którego inwestor posiada tytuł prawny;

8) gromadzenie i segregację odpadów w miejscach ich powstawania, dodatkowo dla odpadów niebezpiecznych magazynowanie ich w wydzielonych miejscach w szczelnie zamkniętych i oznakowanych pojemnikach oraz gospodarowanie odpadami zgodnie z przepisami odrębnymi i gminnym planem gospodarki odpadami;

9) zakaz lokalizacji punktów zbierania lub przeładunku odpadów, w tym złomu;

4. W zakresie zasad ochrony dziedzictwa kulturowego i zabytków oraz dóbr kultury współczesnej nie podejmuje się ustaleń.

5. W zakresie wymagań wynikających z potrzeb kształtowania przestrzeni publicznych ustala się:

1) dopuszczenie lokalizacji reklam, przy czym dopuszcza się maksymalnie jedną reklamę wielkoprzestrzenną na każdym terenie;

2) dopuszczenie lokalizacji obiektów małej architektury.

6. W zakresie parametrów, wskaźników kształtowania zabudowy oraz zagospodarowania terenu, które podawane są w odniesieniu do działki budowlanej lub do terenu objętego inwestycją, ustala się:

1) sytuowanie budynków zgodnie z wyznaczonymi na rysunku planu liniami zabudowy, przy czym wzdłuż dróg wewnętrznych oznaczonych i nie oznaczonych na rysunku planu ustala się nieprzekraczalną linię zabudowy w odległości 6,0 m od granicy pasa drogowego;

2) maksymalną powierzchnię zabudowy - 60%;

3) minimalny udział powierzchni biologicznie czynnej - 10%;

4) maksymalną wysokość obiektów:

a) dla budynków - 20,0 m, w tym maksymalnie 3 kondygnacje nadziemne, z czego 2 kondygnacje pełne i jedna w poddaszu, przy czym dopuszcza się zwiększenie wysokości zabudowy dla pojedynczych obiektów budowlanych lub części obiektów, z uwzględnieniem lit. b,

b) dopuszczenie zwiększenia wysokości zabudowy na maksymalnie 1/3 powierzchni zabudowy budynku do wysokości 30,0 m,

c) dla reklamy wielkoprzestrzennej wolno stojącej – 20,0 m– liczoną od poziomu terenu do najwyższej części,

d) dla kominów, masztów i stacji bazowych telefonii komórkowej - 40,0 m– liczoną od poziomu terenu do najwyższej części,

e) dla pozostałych budowli do 30,0 m;

5) dopuszczenie stosowania dachów płaskich lub stromych – dwuspadowych lub wielospadowych, o kącie nachylenia połaci dachowych od 25° do 45°;

6) parametry działek budowlanych:

a) minimalną powierzchnię działki budowlanej 5 000,0 m2,

b) dopuszczenie wydzielenia działki o minimalnej powierzchni 120 m2 pod budowę stacji bazowej telefonii komórkowej i o minimalnej powierzchni 50 m2 pod budowę wolno stojącej stacji transformatorowej;

7) reklamę wolno stojącą oraz montowaną na elewacjach budynków, przy czym:

a) powierzchnia reklamy montowanej na elewacji budynku nie może przekraczać 20% powierzchni elewacji, a wysokość - wysokości budynku,

b) zakaz umieszczania reklam w sposób zmieniający lub przesłaniający istotne elementy i detale wystroju architektonicznego.

7. W zakresie granic i sposobów zagospodarowania terenów lub obiektów podlegających ochronie na podstawie przepisów odrębnych nie podejmuje się ustaleń.

8. W zakresie szczegółowych zasad i warunków scalania i podziału nieruchomości nie podejmuje się ustaleń.

9. W zakresie szczególnych warunków zagospodarowania terenów oraz ograniczeń w ich użytkowaniu ustala się:

1) w zależności od potrzeb, w tym dla lokalizacji kondygnacji podziemnych, wykonanie badań geotechnicznych warunków posadowienia obiektów budowlanych;

2) zachowanie ciągłości istniejących sieci drenarskich, z dopuszczeniem ich przebudowy i rozbudowy;

3) wzdłuż drogi krajowej nr 92, oznaczonej symbolem KD-GP, lokalizację budynków z pomieszczeniami przeznaczonymi na stały pobyt ludzi albo pomieszczeń przeznaczonych na stały pobyt ludzi w budynkach wielofunkcyjnych zgodnie z wyznaczonymi na rysunku planu nieprzekraczalnymi liniami zabudowy od krawędzi jezdni drogi krajowej nr 92 w odległości 50,0 m dla obiektów jednokondygnacyjnych i w odległości 70,0 m dla obiektów wielokondygnacyjnych;

4) ograniczenie emisji hałasu w środowisku związanym z zabudową przemysłową, do poziomów dopuszczalnych obowiązujących na terenie sąsiadującej z terenem objętym planem zabudowy podlegającej ochronie akustycznej, zgodnie z przepisami odrębnymi.

10. W zakresie zasad modernizacji, rozbudowy i budowy systemów komunikacji i infrastruktury technicznej ustala się:

1) obsługę komunikacyjną z terenów 1KD-D, 2KD-D i 3KD-D;

2) zapewnienie stanowisk postojowych dla samochodów osobowych w ilości nie mniejszej niż 3 stanowiska na każde 100 m2 powierzchni użytkowej lub 3 stanowiska na każdych 10 zatrudnionych, przy czym stanowiska postojowe powinny być zlokalizowane na własnej działce budowlanej;

3) dla obiektów wymagających obsługi pojazdami ciężarowymi zapewnienie stanowisk przeładunku i postoju w granicach terenów, w minimalnej ilości – 2 stanowiska przeładunku i postoju;

4) dla drogi wewnętrznej oznaczonej orientacyjnie na rysunku planu przez proponowane linie podziału dla wydzielenia drogi wewnętrznej - minimalną szerokość w liniach rozgraniczających – 15,0 m;

5) dla dróg wewnętrznych nie oznaczonych na rysunku planu minimalną szerokość w liniach rozgraniczających – 10,0 m, przy czym drogi nieprzelotowe należy zakończyć placem do zawracania pojazdów;

6) w zakresie systemów infrastruktury technicznej:

a) dopuszczenie lokalizacji sieci infrastruktury technicznej,

b) powiązanie sieci infrastruktury technicznej z układem zewnętrznym, w tym w szczególności sieci wodociągowej, kanalizacji sanitarnej i deszczowej, gazowej, elektroenergetycznej i telekomunikacyjnej,

c) zapewnienie dostępu do sieci zgodnie z przepisami odrębnymi;

7) zaopatrzenie w wodę z sieci wodociągowej;

8) odprowadzenie wód opadowych i roztopowych do sieci kanalizacji deszczowej lub rowów, z dopuszczeniem zagospodarowania wód opadowych i roztopowych z powierzchni utwardzonych i dachów na terenie działki, w tym budowy niecki wsiąkowej, zbiorników podziemnych lub zbiornika przeciwpożarowego, przy czym zanieczyszczone wody opadowe należy oczyszczać przed wprowadzeniem do środowiska zgodnie z przepisami odrębnymi;

9) zaopatrzenie w gaz z sieci gazowej, w tym dopuszcza się rozbudowę sieci oraz lokalizację stacji redukcyjnych IIº (dla średniego ciśnienia);

10) zaopatrzenie w energię elektryczną z sieci elektroenergetycznej, w tym:

a) dopuszczenie lokalizacji konsumenckich stacji transformatorowych powiązanych z istniejącą siecią liniami kablowymi SN-15 kV oraz rozdzielni SN,

b) do czasu przebudowy napowietrznych linii elektroenergetycznych na kablowe zachowanie obszarów oddziaływania linii wolnych od zabudowy, mierzonych od skrajnego przewodu linii w obu kierunkach (w poziomie) dla linii SN – 15 kV po 7,5 m,

c) do czasu przebudowy napowietrznych linii elektroenergetycznych na kablowe zakazuje się sadzenia roślinności wysokiej pod istniejącymi liniami napowietrznymi,

d) dopuszczenie lokalizacji zakładowego Głównego Punktu Zasilania zasilanego w granicach planu linią kablową 110kV;

11) rozbudowę telekomunikacyjnej kanalizacji kablowej i budowę nowej, przy czym lokalizację węzłów telekomunikacyjnych i szafek kablowych z dostępem do drogi publicznej;

12) stosowanie do celów grzewczych paliwa gazowego, ciekłego, energii elektrycznej lub źródeł energii odnawialnej oraz paliwa stałego, z wyłączeniem węgla.

11. W zakresie tymczasowego zagospodarowania, urządzenia i użytkowania terenów ustala się:

1) do czasu realizacji drogi 4KD-D zachowanie dojazdu do terenu oznaczonego symbolem K na działkach nr 1319/4 i 1320/9;

2) zakaz tymczasowego zagospodarowania, urządzenia i użytkowania terenów, z uwzględnieniem pkt 1;

3) na terenie 1P zachowanie istniejącej podziemnej infrastruktury technicznej z możliwością jej przebudowy na terenach dróg publicznych.

12. Ustala się stawkę, o której mowa w art. 36 ust. 4 ustawy, w wysokości 30%.

§ 6. 1.Dla terenu, oznaczonego na rysunku planu symbolem K, dla którego obowiązują ustalenia niniejszego paragrafu, w zakresie przeznaczenia terenu ustala się:

1) przeznaczenie podstawowe: tereny infrastruktury technicznej – kanalizacyjnej – oczyszczalnia ścieków;

2) dopuszczenie lokalizacji obiektów budowlanych związanych z gospodarowaniem odpadami, wytworzonymi w oczyszczalni ścieków.

2. W zakresie zasad ochrony i kształtowania ładu przestrzennego ustala się:

1) stosowanie ogrodzeń o maksymalnej wysokości 2,0 m, wzbogaconych zielenią, z zakazem stosowania prefabrykowanych ogrodzeń betonowych;

2) zakaz budowy napowietrznych sieci elektroenergetycznych i telekomunikacyjnych.

3. W zakresie zasad ochrony środowiska, przyrody i krajobrazu kulturowego ustala się:

1) nasadzenie rzędu drzew wzdłuż granicy terenu z drogą krajową nr 92, z uwzględnieniem wymogów infrastruktury technicznej;

2) nasadzenia drzew i krzewów oraz zagospodarowanie zielenią ozdobną wszystkich wolnych od utwardzenia fragmentów terenów, z uwzględnieniem wymagań sieci infrastruktury technicznej;

3) odprowadzenie ścieków bytowych i komunalnych do sieci kanalizacji sanitarnej;

4) odprowadzenie wód opadowych i roztopowych do sieci kanalizacji deszczowej z uwzględnieniem ustaleń ust. 10 pkt. 6;

5) gromadzenie i segregację odpadów w miejscach ich powstawania, dodatkowo dla odpadów niebezpiecznych magazynowanie ich w wydzielonych miejscach w szczelnie zamkniętych i oznakowanych pojemnikach oraz gospodarowanie odpadami zgodnie z przepisami odrębnymi i gminnym planem gospodarki odpadami;

6) zapewnienie dotrzymania standardów jakości środowiska określonych w przepisach odrębnych w granicach terenu, do którego inwestor posiada tytuł prawny;

7) ochronę powietrza zgodnie z przepisami odrębnymi, w tym zastosowanie technik ograniczających emisję odorów.

4. W zakresie zasad ochrony dziedzictwa kulturowego i zabytków oraz dóbr kultury współczesnej nie podejmuje się ustaleń.

5. W zakresie wymagań wynikających z potrzeb kształtowania przestrzeni publicznych ustala się:

1) dopuszczenie lokalizacji reklam, z wyłączeniem reklam wielkoprzestrzennych;

2) dopuszczenie lokalizacji obiektów małej architektury.

6. W zakresie parametrów, wskaźników kształtowania zabudowy oraz zagospodarowania terenu, które podawane są w odniesieniu do działki budowlanej lub do terenu objętego inwestycją, ustala się:

1) sytuowanie budynków zgodnie z wyznaczonymi na rysunku planu liniami zabudowy;

2) maksymalną powierzchnię zabudowy - 60%;

3) minimalny udział powierzchni biologicznie czynnej - 30%;

4) maksymalną wysokość obiektów:

a) dla budynków - 20,0 m, w tym maksymalnie 3 kondygnacje nadziemne, z czego 2 kondygnacje pełne i jedna w poddaszu,

b) dla reklamy – 7,0 m - liczoną od poziomu terenu do najwyższej części;

c) dla kominów, masztów i stacji bazowych telefonii komórkowej - 30,0 m– liczoną od poziomu terenu do najwyższej części,

d) dla pozostałych budowli – 30,0 m;

5) dopuszczenie stosowania dachów dowolnych;

6) dopuszczenie wydzielenia działki o minimalnej powierzchni 120 m2 pod budowę stacji bazowej telefonii komórkowej i o minimalnej powierzchni 50 m2 pod budowę wolno stojącej stacji transformatorowej;

7) reklamę wolno stojącą oraz montowaną na elewacjach budynków, przy czym:

a) powierzchnia reklamy montowanej na elewacji budynku nie może przekraczać 20% powierzchni elewacji, a wysokość - wysokości budynku;

b) zakaz umieszczania reklam w sposób zmieniający lub przesłaniający istotne elementy i detale wystroju architektonicznego.

7. W zakresie granic i sposobów zagospodarowania terenów lub obiektów podlegających ochronie na podstawie przepisów odrębnych nie podejmuje się ustaleń.

8. W zakresie szczegółowych zasad i warunków scalania i podziału nieruchomości nie podejmuje się ustaleń.

9. W zakresie szczególnych warunków zagospodarowania terenów oraz ograniczeń w ich użytkowaniu ustala się:

2) w zależności od potrzeb, w tym dla lokalizacji kondygnacji podziemnych, wykonanie badań geotechnicznych warunków posadowienia obiektów budowlanych;

2) zachowanie ciągłości istniejących sieci drenarskich, z dopuszczeniem ich przebudowy i rozbudowy.

10. W zakresie zasad modernizacji, rozbudowy i budowy systemów komunikacji i infrastruktury technicznej ustala się:

1) obsługę komunikacyjną z terenu 4KD-D, z uwzględnieniem §5 ust. 11 pkt 1;

2) zapewnienie stanowisk postojowych dla samochodów osobowych w ilości nie mniejszej niż 3 stanowiska na każde 100 m2 powierzchni użytkowej lub 3 stanowiska na każdych 10 zatrudnionych, przy czym stanowiska postojowe powinny być zlokalizowane w granicach terenu;

3) dla obiektów wymagających obsługi pojazdami ciężarowymi zapewnienie stanowisk przeładunku i postoju w granicach terenu;

4) w zakresie systemów infrastruktury technicznej:

a) lokalizację sieci infrastruktury technicznej,

b) powiązanie sieci infrastruktury technicznej z układem zewnętrznym, w tym w szczególności sieci wodociągowej, kanalizacji sanitarnej i deszczowej, gazowej, elektroenergetycznej i telekomunikacyjnej,

c) zapewnienie dostępu do sieci zgodnie z przepisami odrębnymi;

5) zaopatrzenie w wodę z sieci wodociągowej;

6) odprowadzenie wód opadowych do sieci kanalizacji deszczowej lub rowów, z dopuszczeniem zagospodarowania wód opadowych z powierzchni utwardzonych i dachów na terenie działki w tym budowy niecki wsiąkowej, zbiorników podziemnych lub zbiornika przeciwpożarowego, przy czym zanieczyszczone wody opadowe należy oczyszczać przed wprowadzeniem do środowiska zgodnie z przepisami odrębnymi;

7) zaopatrzenie w gaz z sieci gazowej, w tym dopuszcza się rozbudowę sieci oraz lokalizację stacji redukcyjnych IIº(dla średniego ciśnienia);

8) zaopatrzenie w energię elektryczną z sieci elektroenergetycznej, w tym: dopuszczenie lokalizacji konsumenckich stacji transformatorowych powiązanych z istniejącą siecią liniami kablowymi SN-15 kV oraz rozdzielni SN,

9) dopuszczenie lokalizacji zakładowego Głównego Punktu Zasilania zasilanego w granicach planu linią kablową 110kV;

10) rozbudowę telekomunikacyjnej kanalizacji kablowej i budowę nowej, przy czym lokalizację węzłów telekomunikacyjnych i szafek kablowych z dostępem do drogi publicznej;

11) stosowanie do celów grzewczych paliwa gazowego, ciekłego, energii elektrycznej lub źródeł energii odnawialnej oraz paliwa stałego z wyłączeniem węgla.

11. Ustala się zakaz tymczasowego zagospodarowania, urządzenia i użytkowania terenów.

12. Ustala się stawkę, o której mowa w art. 36 ust. 4 ustawy, w wysokości 30%.


§ 7.1. Dla terenów, oznaczonych na rysunku planu symbolami KD-GP, 1KD-D, 2KD-D, 3KD-D i 4KD-D, dla których obowiązują ustalenia niniejszego paragrafu, w zakresie przeznaczenia terenu ustala się:

1) przeznaczenie podstawowe: tereny dróg publicznych o klasach zgodnie z ust. 10 pkt 1;

2) przeznaczenie uzupełniające: infrastrukturę techniczną, przy czym dla terenu KD-GP infrastrukturę związaną z drogą;

2. W zakresie zasad ochrony i kształtowania ładu przestrzennego ustala się:

1) dopuszczenie nasadzeń drzew wzdłuż dróg, z wyłączeniem terenu KD-GP;

2) zachowanie zharmonizowanego wyglądu elementów wyposażenia dróg, takich jak: nawierzchnie, słupy oświetleniowe, tworzących spójne rozwiązanie architektoniczne;

3) zakaz budowy nowych nadziemnych sieci infrastruktury technicznej.

3. W zakresie zasad ochrony środowiska, przyrody i krajobrazu kulturowego ustala się:

1) ochronę istniejących drzew i krzewów, które nie kolidują z planowanym zagospodarowaniem terenu;

2) zagospodarowanie zielenią wszystkich wolnych od utwardzenia fragmentów terenów, przy uwzględnieniu wymaganych planem elementów infrastruktury transportowej i urządzeń infrastruktury technicznej;

3) gospodarowanie odpadami zgodnie z przepisami odrębnymi i gminnym planem gospodarki odpadami;

4) odprowadzenie wód opadowych i roztopowych zgodnie z ust. 10 pkt 6.

4. W zakresie zasad ochrony dziedzictwa kulturowego i zabytków oraz dóbr kultury współczesnej nie podejmuje się ustaleń.

5. W zakresie wymagań wynikających z potrzeb kształtowania przestrzeni publicznych ustala się:

1) zakaz lokalizacji reklam;

2) zakaz lokalizacji tymczasowych obiektów usługowo – handlowych;

3) dopuszczenie lokalizacji obiektów małej architektury;

4) dopuszczenie lokalizacji tablic informacyjnych.

6. W zakresie parametrów, wskaźników kształtowania zabudowy oraz zagospodarowania terenu ustala się:

1) stosowanie parametrów jezdni chodników, ścieżek rowerowych i innych elementów infrastruktury transportowej zgodnie z przepisami odrębnymi,

2) na terenie 1KD-GP:

- usytuowanie jezdni z dwoma pasami ruchu,

- dopuszczenie usytuowania przystanków autobusowych w formie zatok oraz obiektów i urządzeń związanych z obsługą ruchu pasażerów w przypadku wyznaczenia trasy komunikacji zbiorowej,

- dopuszczenie usytuowania ścieżek rowerowych i chodników,

- usytuowanie na połączeniu z drogą 3KD-D skrzyżowania typu rondo o pięciu wlotach, przy czym docelowo przewiduje się zamknięcie obecnego skrzyżowania z ul. Słowackiego (poza planem);

- zakaz wyznaczania stanowisk postojowych;

3) na terenach 1KD-D, 2KD-D, 3KD-D i 4KD-D:

- usytuowanie jezdni z dwoma pasami ruchu,

- usytuowanie co najmniej jednostronnych chodników;

- dopuszczenie usytuowania ścieżek rowerowych i chodników;

4) usytuowanie dodatkowych, innych niż ustalone w pkt 2-3 elementów infrastruktury transportowej, zgodnie z przepisami odrębnymi;

5) lokalizację sieci infrastruktury technicznej zgodnie z przepisami odrębnymi.

7. W zakresie granic i sposobów zagospodarowania terenów lub obiektów podlegających ochronie na podstawie przepisów odrębnych nie podejmuje się ustaleń.

8. W zakresie szczegółowych zasad i warunków scalania i podziału nieruchomości nie podejmuje się ustaleń.

9. W zakresie szczególnych warunków zagospodarowania terenów oraz ograniczeń w ich użytkowaniu ustala się zakaz lokalizacji budynków.

10. W zakresie zasad modernizacji, rozbudowy i budowy systemów komunikacji i infrastruktury technicznej ustala się:

1) następującą klasyfikację dróg publicznych:

a) KD-GP –droga klasy głównej ruchu przyśpieszonego,

b) KD-D –droga klasy dojazdowej;

2) zachowanie ciągłości powiązań elementów pasa drogowego, w szczególności jezdni, chodników, ścieżek rowerowych w granicy obszaru planu oraz z zewnętrznym układem komunikacyjnym z uwzględnieniem pkt 3;

3) powiązanie jezdni na terenach 1KD-D i 2KD-D wyłączenie z jezdnią na terenie 3KD-D;

4) zachowanie istniejącej infrastruktury transportowej, z dopuszczeniem jej rozbudowy lub przebudowy zgodnie z ustaleniami planu;

5) w zakresie systemów infrastruktury technicznej:

a) lokalizację sieci infrastruktury technicznej,

b) powiązanie sieci infrastruktury technicznej z układem zewnętrznym, w tym w szczególności sieci wodociągowej, kanalizacji sanitarnej i deszczowej, gazowej, elektroenergetycznej i telekomunikacyjnej,

c) zapewnienie dostępu do sieci zgodnie z przepisami odrębnymi;

6) odprowadzenie wód opadowych i roztopowych do sieci kanalizacji deszczowej lub rowów, przy czym zanieczyszczone wody opadowe należy oczyszczać przed wprowadzeniem do środowiska zgodnie z przepisami odrębnymi.

11. Ustala się zakaz tymczasowego zagospodarowania, urządzenia i użytkowania terenów.

12. Ustala się stawkę, o której mowa w art. 36 ust. 4 ustawy, w wysokości 30%.

§ 8. Wykonanie uchwały powierza się Burmistrzowi Miasta i Gminy Września.

§ 9. Uchwała wchodzi w życie po upływie 30 dni od daty jej ogłoszenia w Dzienniku Urzędowym Województwa Wielkopolskiego.

Przewodnicząca Rady Miejskiej we Wrześni
/-/Bożena Nowacka

Uzasadnienie
DO UCHWAŁY NR XXVIII/367/2009
Rady Miejskiej we Wrześni
z dnia 15 grudnia 2009 r.



w sprawie: miejscowego planu zagospodarowania przestrzennego terenów pod aktywizację gospodarczą w Gutowie Wielkim, obszar działek o numerach 195/29, cz. 195/28, 195/26 oraz zmiany miejscowego planu zagospodarowania przestrzennego terenów aktywizacji gospodarczej we Wrześni w rejonie ulicy gen. Sikorskiego


Projekt miejscowego planu zagospodarowania przestrzennego został opracowany zgodnie z obowiązującymi przepisami prawa.

Rada Miejska we Wrześni w dniu 12 kwietnia 2007 roku podjęła Uchwałę Nr VI/77/07 w sprawie przystąpienia do sporządzania miejscowego planu zagospodarowania przestrzennego terenów pod aktywizację gospodarczą w Gutowie Wielkim, obszar działek o numerach 195/29, cz. 195/28, 195/26 oraz zmianie miejscowego planu zagospodarowania przestrzennego terenów aktywizacji gospodarczej we Wrześni w rejonie ulicy gen. Sikorskiego.

Celem opracowania niniejszego planu jest regulacja zaprojektowanego na tym terenie układu komunikacyjnego dla obszaru, na którym obowiązuje miejscowy plan zagospodarowania przestrzennego terenów pod aktywizację gospodarczą we Wrześni w rejonie ulicy gen. Sikorskiego, oraz rozszerzenie terenów aktywizacji gospodarczej na obszar działek o numerach 195/29, cz. 195/28, 195/26 w Gutowie Wielkim.

Zgodnie z ustawą z dnia 27 marca 2003 r. o planowaniu i zagospodarowaniu przestrzennym (Dz. U. Nr 80, poz. 717 z późn. zm.), została przeprowadzona procedura sporządzania miejscowego planu, przewidziana w art. 17 ww. ustawy o planowaniu i zagospodarowaniu przestrzennym.

Stosownie do art. 17 pkt. 1 ww. ustawy o planowaniu i zagospodarowaniu przestrzennym, w biuletynie „Wieści z Ratusza” w dniu 15.07.2007 r. ukazało się ogłoszenie o przystąpieniu do sporządzenia ww. miejscowego planu, a obwieszczenie wywieszone było na tablicy ogłoszeń Urzędu w dniach od 16.07.2007 r. do 8.08.2007 r.

Pismem z dnia 19.07.2007 r. zostały zawiadomione o przystąpieniu do sporządzenia zmiany planu organy właściwe do uzgadniania i opiniowania.

W określonym w zawiadomieniu terminie do planu wpłynęło 11 wniosków, które zostały rozpatrzone przez Burmistrza.

W dniu 24.04.2008 r. z projektem planu zapoznała się Gminna Komisja Urbanistyczno-Architektoniczna we Wrześni wydając pozytywną opinię do przedstawionych, w projekcie planu, rozwiązań.

Stosownie do obowiązujących przepisów, Burmistrz Wrześni, pismem z dnia 11.09.2008 r. wystąpił o opinię do Wojewody Wielkopolskiego, Wydziału Środowiska i Rolnictwa oraz Państwowego Powiatowego Inspektora Sanitarnego we Wrześni.

Na podstawie art. 17 pkt 7 ustawy o planowaniu i zagospodarowaniu przestrzennym, Burmistrz Miasta i Gminy Września, pismem z dnia 12.09.2008 r. zawiadomił o uzgadnianiu właściwe organy administracji.

Z uwagi na wejście w życie ustawy z 3.10.2008 r. o udostępnianiu informacji o środowisku i jego ochronie, udziale społeczeństwa w ochronie środowiska oraz o ocenach oddziaływania na środowisko (Dz. U. z 2008 r. Nr 199, poz. 1227) w dniu 5.03.2009 r. wystąpiono do Regionalnego Dyrektora Ochrony Środowiska oraz Państwowego Powiatowego Inspektora Sanitarnego we Wrześni o uzgodnienie zakresu i stopnia szczegółowości prognozy oddziaływania na środowisko dla ww. planu miejscowego.

Projekt planu miejscowego wraz z prognozą oddziaływania na środowisko pismem z dnia 8.04.09 r. oraz z dnia 25.06.09 r. przesłano ponownie do zaopiniowania przez Regionalnego Dyrektora Ochrony Środowiska. Projekt planu wraz z prognozą oddziaływania na środowisko został zaopiniowany pozytywnie przez Regionalnego Dyrektora Ochrony Środowiska dnia 27 lipca 2009 r. oraz pozytywnie uzgodniony przez Państwowego Inspektora Sanitarnego we Wrześni dnia 15.04.2009 r.

Z uwagi na brak jednoznacznego stanowiska Generalnej Dyrekcji Dróg Krajowych i Autostrad pismem z dnia 11.02.2009 r. wystąpiono ponownie o uzgodnienie projektu planu miejscowego.

Grunty objęte niniejszym planem nie wymagają uzyskania zgody na zmianę przeznaczenia na cele nierolnicze lub nieleśne.

Po uzyskaniu wymaganych opinii i uzgodnień rozpoczęto kolejny etap sporządzania planu:

- wyłożenie do publicznego wglądu. Wyłożenie projektu planu wraz z prognozą oddziaływania na środowisko nastąpiło w dniach od 24.08.2009 r. do 15.09.2009 r. Ogłoszenie ukazało się w biuletynie „Wieści z Ratusza” w dniu 14.08.2009 r., obwieszczenie wywieszono na tablicy ogłoszeń Urzędu w dniach od 14.08.2009 r. do 29.09.2009 r. Dyskusję publiczną wyznaczono na dzień 8.09.2009 r.

- stosownie do art. 39 ustawy z dnia 3 października 2008r. O udostępnianiu informacji o środowisku i jego ochronie, udziale społeczeństwa w ochronie środowiska oraz o ocenach oddziaływania na środowisko (Dz. U. Nr 199, poz. 1227), podano do publicznej wiadomości dnia 14.08.2009 r. informację o możliwości zapoznania się z wyłożoną do publicznego wglądu dokumentacją projektu miejscowego planu wraz z prognozą oddziaływania na środowisko oraz o możliwości składania uwag i wniosków do planu w terminie do 29.09.2009r.

W ustawowym terminie, tj. 14 dni po wyłożeniu projektu zmiany planu do publicznego wglądu, nie wniesiono żadnych uwag.

Zakres ustaleń planu wynika z uchwały Rady Miejskiej we Wrześni o przystąpieniu do sporządzenia przedmiotowego planu oraz z ww. ustawy o planowaniu i zagospodarowaniu przestrzennym.

Wobec dopełnienia przewidzianej ustawą z dnia 27 marca 2003 r. o planowaniu i zagospodarowaniu przestrzennym procedury, przedłożono Radzie Miejskiej we Wrześni miejscowy plan zagospodarowania przestrzennego terenów pod aktywizację gospodarczą w Gutowie Wielkim, obszar działek o numerach 195/29, cz. 195/28, 195/26 oraz zmianę miejscowego planu zagospodarowania przestrzennego terenów aktywizacji gospodarczej we Wrześni w rejonie ulicy Gen. Sikorskiego.

W związku z powyższym, podjęcie przez Radę Miejską we Wrześni uchwały dotyczącej uchwalenia niniejszego planu miejscowego jest w pełni uzasadnione.

Załącznik Nr 2 do uchwały Nr XXVIII/367/2009
Rady Miejskiej we Wrześni
z dnia 15 grudnia 2009 r.


Rozstrzygnięcie Rady Miejskiej we Wrześni

o sposobie rozpatrzenia uwag wniesionych do projektu

miejscowego planu zagospodarowania przestrzennego terenów pod aktywizację gospodarczą w Gutowie Wielkim, obszar działek o numerach 195/29, cz. 195/28, 195/26 oraz zmiany miejscowego planu zagospodarowania przestrzennego terenów aktywizacji gospodarczej we Wrześni w rejonie ulicy gen. Sikorskiego

Na podstawie art. 20 ust. 1 ustawy z dnia 27 marca 2003 r. o planowaniu i zagospodarowaniu przestrzennym (Dz. U. Nr 80, poz. 717 i z późn. zm.)Rada Miejska we Wrześni rozstrzyga, co następuje:

Do projektu miejscowego planu zagospodarowania przestrzennego terenów pod aktywizację gospodarczą w Gutowie Wielkim, obszar działek o numerach 195/29, cz. 195/28, 195/26 oraz zmiany miejscowego planu zagospodarowania przestrzennego terenów aktywizacji gospodarczej we Wrześni w rejonie ulicy gen. Sikorskiego nie wniesiono żadnych uwag, których sposób i terminy wnoszenia określone zostały w art. 17 pkt 10, 11, 12, ustawy z dnia 27 marca 2003 r. o planowaniu i zagospodarowaniu przestrzennym.

Przewodnicząca Rady Miejskiej we Wrześni
/-/Bożena Nowacka



Załącznik Nr 3 do uchwały Nr XXVIII/367/2009
Rady Miejskiej we Wrześni
z dnia 15 grudnia 2009 r.


Rozstrzygnięcie Rady Miejskiej we Wrześni o sposobie realizacji, zapisanych

w miejscowym planie zagospodarowania przestrzennego terenów pod aktywizację gospodarczą w Gutowie Wielkim, obszar działek o numerach 195/29, cz. 195/28, 195/26 oraz zmianie miejscowego planu zagospodarowania przestrzennego terenów aktywizacji gospodarczej we Wrześni w rejonie ulicy gen. Sikorskiego


Na podstawie art. 20 ust.1 ustawy z 27 marca 2003 r. o planowaniu i zagospodarowaniu przestrzennym (Dz. U. Nr 80, poz. 717 z późn. zm.) Rada Miejska we Wrześni rozstrzyga, co następuje:

1. Określa się sposób realizacji oraz zasady finansowania inwestycji z zakresu infrastruktury technicznej, służących zaspokajaniu zbiorowych potrzeb wspólnoty, które należą do zadań własnych gminy, w zakresie :

1) gminnych dróg, ulic, placów oraz organizacji ruchu drogowego;

2) wodociągów i zaopatrzenia w wodę, kanalizacji, usuwania i oczyszczania ścieków komunalnych, utrzymania czystości i porządku oraz urządzeń sanitarnych, wysypisk i unieszkodliwiania odpadów komunalnych;

3) transportu zbiorowego.

2. Opis sposobu realizacji inwestycji:

1) realizacja inwestycji przebiegać będzie zgodnie z obowiązującymi przepisami, w tym m.in. ustawą prawo budowlane, ustawą o zamówieniach publicznych, samorządzie gminnym, gospodarce komunalnej i o ochronie środowiska;

2) inwestycje w zakresie przesyłania i dystrybucji paliw gazowych, energii elektrycznej realizowane będą w sposób określony w art. 7 ustawy Prawo energetyczne z dnia 10 kwietnia 1997 r. (Dz. U. z 2006 r. Nr 89, poz. 625 ze zm.);

3) realizacja i finansowanie inwestycji w zakresie infrastruktury technicznej nie wyszczególnionych w ust. 1, jest przedmiotem umowy zainteresowanych stron.

3. Finansowanie inwestycji będzie odbywać się poprzez:

1) wydatki z budżetu gminy;

2) współfinansowanie środkami zewnętrznymi, poprzez budżet miasta – w ramach m.in.:

a) dotacji unijnych,

b) dotacji samorządu województwa,

c) dotacji i pożyczek z funduszy celowych,

d) kredytów i pożyczek bankowych,

e) innych środków zewnętrznych;

3) udział inwestorów w finansowaniu w ramach porozumień o charakterze cywilno – prawnym lub w formie partnerstwa publiczno – prywatnego – „PPP”, a także właścicieli nieruchomości.

Przewodnicząca Rady Miejskiej we Wrześni
/-/Bożena Nowacka

PODSUMOWANIE


sporządzone zgodnie z art. art. 43 ust.2 i 55 ust. 3 ustawy z dnia 3 października 2008r. o udostępnianiu informacji o środowisku i jego ochronie, udziale społeczeństwa w ochronie środowiska oraz o ocenach oddziaływania na środowisko (Dz. U. Nr 199, poz.1227) do dokumentu – miejscowego planu zagospodarowania przestrzennego terenów pod aktywizację gospodarczą w Gutowie Wielkim, obszar działek o numerach 195/29, cz. 195/28, 195/26 oraz zmiany miejscowego planu zagospodarowania przestrzennego terenów aktywizacji gospodarczej we Wrześni w rejonie ulicy gen. Sikorskiego

Podstawę do opracowania wymienionego wyżej planu stanowiła uchwała Nr VI/77/07 Rady Miejskiej we Wrześni z dnia z dnia 12 kwietnia 2007 r. w sprawie przystąpienia do sporządzenia tego planu.

Projekt przedmiotowego planu poddany został procedurze formalno – prawnej związanej z jego uzgodnieniem i konsultacją społeczną, określonej w art.17 ustawy z 27 marca 2003 r. o planowaniu i zagospodarowaniu przestrzennym (Dz.U. Nr 80, poz. 717 z późn. zm.).

W czasie toczącej się procedury planistycznej weszła w życie 15 listopada 2008r. ustawa z dnia 3 października 2008r. o udostępnianiu informacji o środowisku i jego ochronie, udziale społeczeństwa w ochronie środowiska oraz o ocenach oddziaływania na środowisko (Dz. U. Nr 199, poz.1227), która wprowadziła obowiązek przeprowadzenia strategicznej oceny oddziaływania na środowisko projektu miejscowego planu.

W związku z wejściem w życie ustawy z dnia 3 października 2008 r. Burmistrz Wrześni wystąpił do Regionalnej Dyrekcji Ochrony Środowiska oraz Państwowego Powiatowego Inspektora Sanitarnego we Wrześni o uzgodnienie zakresu prognozy oddziaływania na środowisko.

W oparciu o powyższe uzgodnienia i z uwzględnieniem ustawy z dnia 3 października 2008 r. została sporządzona prognoza oddziaływania na środowisko.

W projekcie planu uwzględniono ustalenia zawarte w prognozie oddziaływania na środowisko.

Projekt miejscowego planu zagospodarowania przestrzennego wraz z prognozą został poddany procedurze opiniowania i uzgadniania.

W jej trakcie projekt planu wraz z prognozą na środowisko został zaopiniowany pozytywnie min. przez Regionalnego Dyrektora Ochrony Środowiska dnia 27.07.2009 r., pismo: nr RDOŚ-30-00.III-7041-1122/09/ak oraz przez Państwowego Powiatowego Inspektora Sanitarnego we Wrześni dnia 17.09.2008 r., pismo: NS-72/5-5/2008.

W dniach od 24.08.2009 r. do 29.09.2009 r. projekt planu wraz z prognozą oddziaływania na środowisko został wyłożony do publicznego wglądu w siedzibie Urzędu Miejskiego.

W dniu 08.09.2009 r. została zorganizowana dyskusja publiczna nad przyjętymi w projekcie planu rozwiązaniami i wyznaczony został termin, w którym można było wnieść uwagi i wnioski do projektu planu miejscowego, do 29.09.2009r.

Stosownie do art. 39 ustawy z dnia 3 października 2008r. O udostępnianiu informacji o środowisku i jego ochronie, udziale społeczeństwa w ochronie środowiska oraz o ocenach oddziaływania na środowisko (Dz. U. Nr 199, poz. 1227), podano do publicznej wiadomości dnia 14.08.2009 r. informację o możliwości zapoznania się z wyłożoną do publicznego wglądu dokumentacją projektu miejscowego planu wraz z prognozą oddziaływania na środowisko oraz o możliwości składania uwag i wniosków do planu w terminie od 24.08.2009 – 29.09.2009 r.

W odniesieniu do wyłożonego projektu planu nie wpłynęła żadna uwaga. Rozpatrzenie uwag przez Radę Miejską we Wrześni stanowi załącznik nr 2 do uchwały Nr XXVIII/367/2009 Rady Miejskiej we Wrześni z dnia 15 grudnia 2009 r. przyjmującej projekt ww. planu miejscowego.

Pdf
DRUKUJ
POWRÓT
ZGŁOŚ
NIEŚCISŁOŚĆ
Decyzja użytkownika w zakresie plików Cookie na niniejszej stronie

Używamy informacji zapisanych za pomocą plików cookie i podobnych technologii m.in. w celach statystycznych oraz w celu dostosowania naszych serwisów do indywidualnych potrzeb użytkowników. W programie służącym do obsługi Internetu można zmienić ustawienia dotyczące plików cookie.Korzystanie z tego serwisu bez zmiany ustawień dotyczących plików cookie oznacza, że będą one zapisane w pamięci urządzenia.